60平方米住宅灯光照明设计解决方案
- 用户名:易风
- 发布时间:2013-07-18 10:56
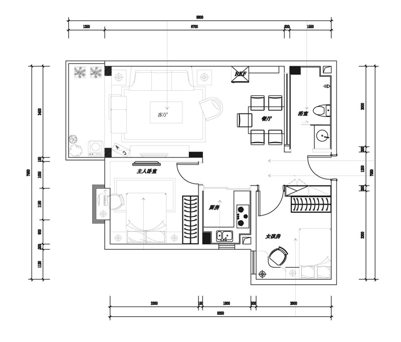
设计需求图纸
设计需求说明60平方米,一个主人房、一个是我小女儿的房、有大厅、饭厅、厨房标准的小户型商品楼,今年准备装修,请朋友帮我设计了一下房子布局图。我的装修风格比较简单,舒服就好。 |
灯光照明设计方案回复回复时间:2013-08-02 14:33灯光照明设计布局图
灯光照明设计方案说明1、入室走道,做三个长方型的天花池造型,池四周用T5-LED灯管做暗槽。 2、饭厅做一个方型的天花池,池四周用T5-LED灯管做暗槽,中间装LED蜡烛球泡做的吊灯。 3、大厅做一个L型的暗槽,槽里面用T5-LED灯管打暗光,中间装LED蜡烛球泡做的水晶吊灯。电视柜上配四个LED小射灯,看电视时可打开。 4、主人房和小孩房放一盏LED家装吸顶灯。 5、厨房、卫生间正中各装LED吸顶厨卫灯。 6、具体的布局请看设计图。 |
灯光照明设计方案相关产品推荐 |







































































